Изготовление входной деревянной двери своими руками — руководство для всех — Гид по дверям
Входная деревянная дверь в частный дом, фото
Изготовление входной деревянной двери доступно для любого человека, обладающего хорошей моторикой. Двери представляют собой существенные компоненты в интерьерах многих зданий.

Они несут определенные функции: защита от нежеланных посетителей, сохранение тепла, ограждение от лишних шумов и т.д. Подобные конструкции в нынешнее время все чаще изготавливают из металла, а вот внутренние почти всегда деревянные.
Остановимся подробнее на самом процессе изготовления.
Вкратце о чем пойдет речь:
- Шпонки
- Филенчатые
- Блоки
- Крепление для блоков
- Наличники
- Штифты
- Установка петель
- Виды петель
- Зазоры
- Регулирование
- Замки
Материал
Шпонки

как сделать
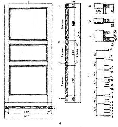
Главными конструктивными элементами для дверей являются доски, которые образуют полотнище, шпонки в кол-ве двух штук и подкос. Он располагается по диагонали и служит предохранению от перекосов.
Обычно откос и шпонки подбиваются на полотнище. Для этого используются бруски. В более сложных случаях шпонки врезаются непосредственно в доски. Для этих целей шпонки изготавливаются по размерам как на рисунке.
Пропилы делаются циркулярными электрическими пилами, выставляя их под нужным уклоном (около 60 градусов).
Филенчатые

Типы филенок
Деревянная дверь своими руками, скорее всего, будет филенчатой. Деревянная филенчатая дверь — гладкий, резной или профилированный щит, вставляемый в обвязку. Такой щит изготавливается из нескольких (или одной) досок.
В брусках делается паз, а доски филенки на торцах имеют профиль, входящий в паз обвязки. Филенчатые собираются из обычных, качественно обработанных обвязок (брусков), с последующей вставкой в них филенок.
Филенки существуют:
- плоские
- наплавные
- с окладными калевками (профили фигурные, сочетающие прямые и кривые линии),
- с фигареями (края, выструганные фигурно)
Часто филенчатые изделия производятся с остеклением.
Бывают наружными и внутренними:
- Наружные имеют толщину от 40 до 60 мм.
- Внутренние — менее 40 мм.

Филенчатые изделия со стеклом
Блоки
Из чего изготавливают
Деревянные двери состоят из полотнища и рамки. Все это в целом называется дверным блоком.
Наружные двери имеют рамку из бруса толщиной приблизительно 75-150 мм. На внутренние используется брус толщиной 40-50 мм.

Рамка
Деревянная входная дверь своими руками изготовленная (если она наружная или банная) должна иметь нижний брусок, предназначенный для улучшения теплоизоляционных свойств.
Рамка выбирается (по внутренней поверхности) в четверть. Это нужно для более плотного прилегания полотнища к рамке. Таким образом, улучшается звукозащита и сохранение тепла.
Щель под полотном необходима не только с целью проветривания, но и для компенсации деформации в ходе ее эксплуатации. Нужна щель так же и на случай застила полов ламинатом, линолеумом и т.п.
Рамки для деревянных дверей в срубах, которые подвержены оседанию, имеют пазы по вертикальным брускам, в сочетании с шипами по стенам.
Крепление блоков
В тех строениях, которые не подвержены осадке (каркасно-щитовые), рамка дверей крепится к стойкам стен саморезами и гвоздями, находящимися в четвертях. В этом случае они менее заметны, так как прикрыты полотном. Углубления смазываются шпаклевкой или закрываются заглушками в цвет.
Крепятся блоки исключительно по уровню как по горизонтали, так и по вертикали при помощи клиньев. Для вертикальных брусков используется не меньше трех гвоздей. В срубах крепление делается по нижнему венцу. Окончательное крепление производится через год-два (вслед за осадкой).
Рамка в каменных домах крепится к закладным брускам. Существуют и др. методы (анкерные болты, арматурные штыри). Щели между стенами и рамками можно заделывать паклей или цементным раствором.
Наличники
Существуют наружные и внутренние наличники. Внутренние имеют ширину 60-200 мм. Они обязательно должны быть шире брусков коробки не менее чем на 200 мм. Классический вид наличников имеет 5-миллиметровый паз в с внутренней стороны (см. Установка наличников).
Наружная сторона может быть как простой, так и рельефной. Углы наличников образуют «ус» под 45 градусов.В начале запиливаются и устанавливаются по уровню вертикальные наличники.
Потом под верхнюю их часть подставляется наличник (горизонтальный). Отмечается угол карандашом с одной стороны, отпиливается. Затем тоже делается с другим углом.
Деревянные входные двери своими руками устанавливаются крепления наличников финишными гвоздями или саморезами.
Штифты

Штифты
Дефекты, наиболее часто встречающиеся — коробление из-за сухого материала. Если имеются штифты, то в случае коробления она не рассыплется. Отсутствие штифтов недопустимо.
Петли
Делая входные деревянные двери своими руками, не обойтись без петель. Петли бывают более 20 видов (см. Петли для межкомнатных дверей). Высота петлей может колебаться от 30 до 40 см. Для домашних дверей достаточно 75-150 см.

Типы петель
К самым распространенным относятся полушарнирные съемные, состоящие их двух карт (одна со стержнем, другая без). Иногда используются петли на шарнирах. Петли могут быть левыми и правыми, а также универсальными.
Зазоры
Прежде чем устанавливать петли, полотнище кладут так, что бы между проемом и им не возникал зазор по линии петель. Для этого используют обрезки оргалита или же одинаковые рейки, размещая их так, чтобы иметь равномерный зазор.
Петли врезаются на расстоянии равном их высоте, отмеренным от внутреннего угла рамки. Если же в том месте есть шипы, от них нужно отступить на 1 см.
После установки прокладок, измерения расстояния, на котором будут находиться петли, карты обводятся карандашом по контуру. Гнезда для петлей выбираются стамеской из расчета глубины толщины. Поверхность петель должна быть заподлицо с дверным полотнищем, а также бруском стойки.
Полезный совет! Дверные петли прикрепляются саморезами. Если используются цветные саморезы, то нужно знать, они непрочные. Черные саморезы для дерева лучше закалены, более прочные.
Регулировка дверей
Если они со временем начнут неплотно или со скрипом закрываться, их нужно отрегулировать. Регулировка (см. Как отрегулировать входную дверь: ухаживаем правильно) представляет собой смазку петлей, подтяжку саморезов, замену их на более длинные, установку клинышков в отверстия (если они разболтаны).
Смазочными материалами являются густые и твердые консистенции: кусочки графитового стержня, солидол, смазки. После снятия или в результате ее приподнимания, нужно натолкать смазки в петлевое отверстие в определенном количестве. Если спустя время смазка станет выделяться из петель, значит, ее положили слишком много.
Иногда они сильно проседают, цепляясь за половые доски. Для того, чтобы устранить это нужно поместить между картами петель шайбы определенной толщины внутреннего и внешнего диаметра.
Также можно переставить петли выше, или же простругать нижний торец дверного полотна. Состругивать нужно умеренно, чтобы при допустимой влажности помещения сохранить минимальный зазор.
Изготавливая своими руками входные деревянные двери, нужно иметь в виду, что если между филенками полотнища образовались щели, их нужно заклеить и зашпаклевать, или перебрать, или закрыть планками.
Полезный совет! Чтобы избежать ударов двери полотном или ручкой о стену при открывании, на пол нужно закрепить буфер (упор). Чем дальше он будет располагаться от петель, тем лучше.
О дверных замках
Лучше, если замка нет, но имеется дверная ручка. В случае правильной подгонки, ручки вполне хватит для закрывания двери с хорошей плотностью. Если же дверь немножко приоткрывается, на нее набивают кожаную набойку.
Набойка набивается нужной толщины на полотнище ближе к ручке, или на верхний торец. Ручку нужно обязательно прикреплять к обвязке, но не к филенчатой доске, поскольку так будет прочнее. Устанавливая ручку, ее отводят подальше от проема, чтобы не поранить руку.
На наружные двери устанавливаются замки. Наиболее часто применяются замки висячие с наличием петлей-ушек, а также накладные и врезные. Самый простой вариант — висячие, но они менее надежны.
Также на наружные двери могут устанавливаться цепочки, доводчики, щеколды, засовы, глазки и другие элементы.
Сборка деревянной двери своими руками
Выбор материала двери
Перед тем как сделать деревянную дверь своими руками, необходимо подобрать материал. Для этих целей лучше всего использовать породы древесины, которые отличаются прочностью, но при этом легко обрабатываются. К таким относятся:
| ип древесины | Особенности |
| Сосна | Среди достоинств можно выделить такие моменты, как:
Единственное, следует отметить, что сосна со временем может рассыхаться, поэтому не всегда уместна. |
| Ольха | Также отличается простотой обработки и небольшим весом. Единственное, ольху необходимо тщательно обрабатывать антисептическими составами, так как она сильно подвержена загниванию. |
| Береза | Достаточно твердая и плотная древесина, обладающая красивой текстурой. |
| Дуб | Является очень прочной и долговечной древесиной, однако, тяжелой в обработке. Кроме того, дуб стоит довольно дорого. |
| Бук | Прочная и долговечная порода, устойчивая к механическим нагрузкам. Единственное, выполняя двери из бука, следует учитывать, что данная древесина восприимчива к воздействию влаги. Поэтому она требует особой обработки. |
| Лиственница | Является прочным и долговечным материалом, устойчивым к воздействию влаги. Единственным недостатком лиственницы является достаточно высокая стоимость. |
| Клен | Обладает хорошей прочностью и при этом легко обрабатывается. Среди других достоинств клена можно выделить устойчивость к влаге. |
Обратите внимание!
Если вы хотите сделать деревянные двери в баню своими руками , то лучше использовать липу, так как при нагреве эта древесина не выделяет смолы.
Надо сказать, что изменить те или иные качества древесины позволяют специальные пропитки.
Поэтому основными критериями выбора обычно являются:
- Вес материала;
- Стоимость;
- Доступность.

Пример чертежа филенчатой конструкции
Изготовление полотна
- Первым делом надо вырезать лист ДВП, который по размерам должен подходить к дверной коробке.
- По периметру лист обшивается досками. Если в наличии имеется фрезер, следует выполнить профили для соединения досок между собой по принципу шип/паз. Прикрепить доски к ДСП можно саморезами и столярным клеем.
- Затем по центру точно так же монтируются ребра жесткости.
- Далее с двух сторон изделие обшивается фанерой и шпоном в качестве финишного покрытия.
Существует еще одно технология изготовления щитовой конструкции, в которой используется утеплитель. Для ее изготовления понадобится доски толщиной 25 мм и шириной не менее 50 мм, а также листы фанеры.

Изготовление утепленной двери
Итак, теплая деревянная дверь своими руками изготавливается в такой последовательности:
- Вначале из досок нужно выполнить каркас, который представляет собой раму и поперечины посередине. Для придания большей жесткости также можно использовать раскосы.
- Далее с одной стороны к каркасу крепится фанера.
- Затем в каркас укладывается теплоизолятор, и изделие с другой стороны обшивается листовым материалом.
Гораздо более сложной в исполнении является филенчатая конструкция, так как она состоит из множества деталей. Поэтому браться за ее изготовления лучше после получения опыта изготовления более простых изделий. Правда, после изготовления всех элементов, филенчатая дверь собирается как конструктор, без каких-либо сложностей.

Схема конструкции филенчатой двери
По устройству, она напоминает оконную раму, так как состоит из каркаса (обвязки) и филенок, которые заполняют пространство рамы.
Совет!
Так как дверь представляет собой разборную конструкцию, когда приходит в негодность какая-либо ее деталь, можно выполнить ремонт деревянных дверей своими руками , заменив испорченный элемент новым.
Итак, процесс ее изготовления выглядит следующим образом:
- В первую очередь выполняется каркас, который, как правило, состоит из четырех деталей, соединяющихся между собой по принципу шип/паз. Кроме того посередине обычно устанавливается горизонтальное ребро жесткости, которое крепится к вертикальным стойкам каркаса.
- С внутреннего торца всех деталей выполняется паз для вставки филенок.
- Затем изготавливаются филенки. Они могут быть выполнены из самых разных материалов – цельной доски, МДФ, ДСП, фанеры, стекла и пр.
- Филенки вставляются в пазы и дополнительно закрепляются декоративными штапиками.

Готовая филенчатая дверь
Надо сказать, что после изготовления дверей, вне зависимости от типа ее конструкции, сразу же выполняется монтаж всей необходимой фурнитуры. В частности, врезаются навесы, замки и пр. Кроме того, изделие нужно вскрыть лаком или покрасить.
Монтаж
- Замеры. Прежде чем покупать изделия, проведите замеры ширины и высоты проема (см. Размеры входных дверей). Если финишное напольное покрытие отсутствует, добавьте к расчетам его планируемую высоту.
- Сборка коробки. Разложив детали коробки на полу, просмотрите присутствие всего необходимого. Вновь проведите замеры. Не забывайте, одна ошибка, и работа пойдет насмарку. Склейте детали по углам, закрепив их саморезами.
- Запенивание. Поставьте коробку в проем. Зафиксируйте раму клиньями по углам и по центру. Проверьте уровнем установленную раму. Напротив клиньев установите жесткие распорки. Затем заполните полости межу стенкой и коробкой пеной.
- Монтаж. Дождитесь высыхания пены, через 12 часов нужно удалить ее торчащие куски. Потом удалите клинья, уберите распорки. Теперь пришел черед наличников. Запилите предварительно необходимую длину под углом сорок пять градусов, высверлите отверстия для гвоздей. Наличник приложите к проему, зафиксируйте его финишными гвоздями. Дверь можно устанавливать на петли.
- Ручки. После завершения всех работ, осталось прикрутить ручки. Врезать замок лучше заранее.
Какие бывают входные двери в дом?
Существует множество разных типов входных дверей для домов:
-
Металлические двери — надежные, прочные и в многих случаях огнеупорные.
-
Деревянные двери — элегантные и привлекательные, могут иметь декоративные элементы.
-
Пластиковые двери — легкие и энергоэффективные, часто имеют прозрачные панели.
-
Стеклянные двери — идеальны для улучшения освещенности и просмотра на улицу.
-
Двери с многослойным покрытием — надежные и износостойкие, обладают высокой звукоизоляцией.
Выбор входной двери зависит от персональных предпочтений, бюджета и целей, которые вы хотите достичь (например, безопасность, энергоэффективность, внешний вид).