Проектирование вентиляции и кондиционирования воздуха в условиях Москвы
Проектирование вентиляции и кондиционирования
Опытные эксперты разработают проект системы проектирование вентиляции и кондиционирования воздуха для объектов самой разной сложности. Наши услуги доступны клиентам из Москвы и Московской области.
Получить консультацию
Разработка проекта вентиляции и кондиционирования в точном соответствии с требования ГОСТ, СНиП, СП, Евростандарта.
Бесплатный выезд проектировщика на объект.
Документально подтвержденная гарантия.
Документы и требования для проекта

Проектирование систем вентиляции и кондиционирования воздуха в Москве производится на основании архитектурно-строительной документации (поэтажные планы, экспликации).
Для разработки проекта потребуется техническое задание (ТЗ) и технологическая документация (для предприятий — сведения о технологическом цикле).
Потребуются проектные данные по существующей электрической мощности.
Что дает проект вентиляции и кондиционирования
Индивидуальные проект климатических систем — обязательное условие эффективной, штатной и рациональной эксплуатации оборудования.
Комфортные параметры микроклимата: температурный и влажностный баланс, фильтрация воздуха, удаление пыли, аллергенов, запахов, вирусов.
Соответствие мощности установки задачам вентилируемого и кондиционируемого помещения.
Оптимальная энергоемкость системы и минимальные затраты на эксплуатацию.
Гарантия соблюдения требований строительных и санитарных нормативов.
Зачем заказывать проект вентиляции и кондиционирования

Допуски к монтажу
Ускорим процедуру получения допуска к монтажу инженерных сетей и оборудования, возьмем на себя бюрократические аспекты получения свидетельства.

Профессиональная конфигурация
Предложим оптимальный вариант конструкции вентсети. Создадим ресурсоемкую, но не загромождающую помещение систему. Учтем требования дизайн-проекта и интегрируем оборудование в установленные инженерные сети.

Экономическая целесообразность
Задача проектирования вентиляции и кондиционирования воздуха — создать систему, максимально отвечающую потребностям объекта с минимальными расходами на эксплуатацию и быстрым сроком окупаемости инвестиций.

Проект — под задачи объекта
Климатические системы нельзя устанавливать по типовым проектам. Мнимая экономия на индивидуальной разработке проектной документации может привести к дорогостоящей реконструкции, незапланированному ремонту и штрафам, если вентиляция не справится со своей задачей на производстве.

Документальная гарантия
Разработка проекта в узкоспециализированной инженерной компании — гарантия качества работ с документальным подтверждением.
Для кого выполняем проектирование и на каких объектах
Производственные помещения
Главная задача вентиляционной системы на производстве — контроль предельно-допустимых концентраций загрязняющих веществ и формирование благоприятного микроклимата для персонала. При разработке проекта учитываются требования строительных, санитарно-гигиенических и противопожарных нормативов.
Цеха
Проектирование вентиляции цеха зависит от его размеров и типа производства. При выполнении расчетов учитывается вид работ, объем теплопритоков от людей и оборудования, расход приточного и вытяжного воздуха, допустимые и оптимальные параметры микроклимата.
Складские помещения
При выполнении проектных расчетов вентиляции склада принимается во внимание характер хранимой продукции, габариты помещения, высота потолков, степень загрязнения воздуха. Уделяется большое внимание оперативному и качественному удалению избыточной влаги.
Лаборатории
Вентиляция в медицинских и научных лабораториях не должна сообщаться с другими помещениями. При разработке проекта важно учесть ряд принципиальных требований по оборудованию вытяжных шкафов, организации воздухообмена в лаборатории, контролю приточного и вытяжного воздуха.
Рестораны, кафе, бары
Заведения общепита (рестораны, кафе, бары) относятся к сфере услуг: в них высоко ценится клиентский сервис и общий уровень комфорта. Правильно спроектированная вентсистема идеально впишется в помещение, не допустит проникновение запахов кухни в зал, создает оптимальный микроклимат.
Офисы
Офисное пространство — место максимального сосредоточения, продуктивности и ментальной концентрации. Немалая заслуга в этом принадлежит вентиляции и кондиционированию: оборудование удаляет избытки CO2, влагу, неприятные запахи. Повышает уровень кислорода, создает тепловой комфорт.
Салоны красоты, СПА
Вентиляция и кондиционирование — важные инженерные коммуникации в индустрии красоты. Позволяют сделать пребывание клиента в салоне по-настоящему комфортным и приятным. Важное условие: требования к акустике (оборудование не должно шуметь) и интеграция в дизайн помещения.
Магазины
Система вентиляции магазина или торгового центра — одна из основных инженерных систем коммерческого предприятия. От ее функционирования зависит качество воздуха в торговых помещениях. Ее качественная работа позволяет обеспечить соблюдение санитарных требований, а также создать комфортные условия для покупателей и персонала магазина
Кальянные
Вентиляция в курительных комнатах (кальянных) должна эффективно удалять отработанный, задымленный воздух, снижать концентрацию канцерогенов в воздухе, обеспечивать приток кислорода. Используется разбавляющая или вытесняющая вентиляция. При составлении проекта рассчитывается эффективность конструкции, проводится точный расчет элементов.
Загородные дома, коттеджи
Проектирование вентиляции загородного дома — довольно нетривиальная задача. Важно учесть особенности планировки, этажность, предпочтения заказчика. В ряде случаев достаточно эффективно скомбинировать естественную приточную вентиляцию с механической вытяжной. Для других объектов потребуется центральная приточно-вытяжная установка.
Бассейны
В закрытых бассейнах наблюдается повышенный уровень влажности, что диктует определенные требования к проектированию вентиляции. Важно предусмотреть методы борьбы с избыточной влажностью и организовать эффективный воздухообмен и комфортный микроклимат.
Квартиры
Мнение о том, что типовым квартирам проект вентиляции не нужен, относится к категории мифов. Даже в стандартной «двушке» сложно поддерживать оптимальную циркуляцию воздуха без портативной приточки и штатно работающей вытяжки.
Клиники и стоматологии
Работа по проектированию вентиляции медицинских учреждений, например, стоматологии требует особого внимания. Важно обеспечить комфортную обстановку для персонала и пациентов, не допустить застаивания воздуха. Вентиляция хирургических и лабораторных помещений не должна сообщаться с другими комнатами.
Фитнес-центры
Главный фактор, который учитывается при проектировании систем вентиляции и кондиционирования — объем теплопритоков от людей, общая вместимость зала, габариты помещения. Важно не допустить резких перепадов температуры и образования сквозняков.
Что входит в состав проекта
Пояснительная часть

Пояснительная часть
Пояснительная записка содержит вводные данные об объекте, общие положения и краткие сведения о проекте. Цель документа — предоставить информацию по целевым вопросам (технические характеристики здания, перечень мероприятий, необходимых для решения поставленных задач).
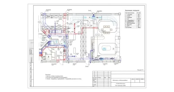
Планы и схемы систем

Планы и схемы систем
Данное приложение к проекту содержит чертежную документацию с планами размещения ключевых узлов оборудования и инженерных коммуникаций. Схематическое изображение отличается высокой детализацией: обозначаются габариты вентоборудования, графическое изображение климатической системы. При необходимости проект сопровождается 3D-визуализацией.
Расчетная часть

Расчетная часть
Расчетная часть проекта включает в себя технологический, тепловой, гидравлический (в зависимости от темы), механический и экономический расчеты.
Спецификация

Спецификация
Спецификация проекта содержит данные о материалах, изделиях и оборудовании. Разработка спецификации проекта производится на основании комплекта рабочих чертежей. Для каждой марки чертежей оформляется своя ведомость материалов и оборудования.
Дополнительные услуги

Аудит проекта
Аудит проекта позволяет провести комплексный анализ эффективности проектных решений, повысить финансовую рентабельность, внести правки до проведения монтажных работ.

Исправление проекта
При выявлении грубых нарушений, неточностей или ошибок в расчетах другого подрядчика проведем исправление проектной документации с тщательным обоснованием того или иного решения.

Прохождение проверок проверяющих органов
Подготовим к визиту уполномоченных сотрудников надзорных органов, поможем пройти проверку и гарантируем успешный результат во всех инстанциях.
Гарантии на проект вентиляции и кондиционирования
Предоставляем документальную гарантию на разработку проекта. Гарантийные обязательства фиксируем в договоре.
Внимательно относимся к обратной связи от клиента и пожеланиям доработать проект.
Несем полную ответственность за работоспособность системы.
Предлагаем юридически закрепленное гарантийное и постгарантийное обслуживание.
Гарантируем неукоснительное соблюдение требований действующего законодательства РФ.
Предоставляем расширенную гарантию на закупку оборудования в нашей компании.
Гарантируем увеличенный срок гарантийных обязательств на монтажные работы.
Наши преимущества
Профессионализм и экспертиза
В нашем штате работают высококвалифицированные инженеры-проектировщики с большим опытом работы над сложными проектами.
Юридическая защита сделки
Все аспекты сотрудничества фиксируем в договоре. Гарантируем документальное подтверждение условий сотрудничества.
Прозрачное ценообразование
Составим точную смету с указанием суммарной стоимости оборудования и монтажных работ. Никаких скрытых платежей и необоснованного изменения прайса.
Высокий уровень клиентского сервиса
Сопровождаем заказчика на всех этапах работ: от первой бесплатной консультации — до сдачи проекта.
Проектирование вентиляции и кондиционирования — прайс-лист
| Площадь | Цена |
| Проектирование систем вентиляции | |
| 0 – 50 м² | 240 руб./м² |
| 50 — 100 м² | 216 руб./м² |
| 100 — 200 м² | 192 руб./м² |
| 200 — 500 м² | 171 руб./м² |
| 500 – 700 м² | 144 руб./м² |
| 700 – 1 000 м² | 132 руб./м² |
| 1 000 – 1 500 м² | 108 руб./м² |
| 1 500 – 2 000 м² | 90 руб./м² |
| 2 000 – 2 500 м² | 83 руб./м² |
| 2 500 – 3 000 м² | 73 руб./м² |
| 3 000 – 4 000 м² | 66 руб./м² |
| 4 000 – 5 000 м² | 64 руб./м² |
| 5 000 – 7 000 м² | 62 руб./м² |
| 7 000+ м² | 58 руб./м² |
| Проектирование противодымной вентиляции | |
| 0 — 50 м² | 243 руб./м² |
| 50 — 100 м² | 210 руб./м² |
| 100 — 200 м² | 191 руб./м² |
| 200 — 500 м² | 170 руб./м² |
| 500 – 700 м² | 142 руб./м² |
| 700 – 1 000 м² | 129 руб./м² |
| 1 000 – 1 500 м² | 102 руб./м² |
| 1 500 – 2 000 м² | 84 руб./м² |
| 2 000 – 2 500 м² | 72 руб./м² |
| 2 500 – 3 000 м² | 65 руб./м² |
| 3 000 – 4 000 м² | 60 руб./м² |
| 4 000 – 5 000 м² | 57 руб./м² |
| 5 000 – 7 000 м² | 52 руб./м² |
| 7 000+ м² | 47 руб./м² |
| Проектирование систем кондиционирования | |
| 0 — 50 м² | 192 руб./м² |
| 50 — 100 м² | 186 руб./м² |
| 100 — 200 м² | 179 руб./м² |
| 200 — 500 м² | 168 руб./м² |
| 500 – 700 м² | 162 руб./м² |
| 700 – 1 000 м² | 156 руб./м² |
| 1 000 – 1 500 м² | 149 руб./м² |
| 1 500 – 2 000 м² | 142 руб./м² |
| 2 000 – 2 500 м² | 132 руб./м² |
| 2 500 – 3 000 м² | 120 руб./м² |
| 3 000 – 4 000 м² | 102 руб./м² |
| 4 000 – 5 000 м² | 90 руб./м² |
| 5 000 – 7 000 м² | 83 руб./м² |
| 7 000+ м² | 70 руб./м² |
Рассчитать стоимость проектирования и установки системы
Воспользуйтесь формой ниже, чтобы рассчитать стоимость услуги проектирования вентиляции и кондиционирования в Москве. При отправке данных укажите e-mail — вышлем расчетные данные, уточним дополнительную информацию и согласуем визит специалиста.
Выберите инженерную систему:
Вентиляция
Кондиционирование
Дымоудаление
Водоснабжение и канализация
Электроснабжение и освещение
Слаботочные системы
Отопление
Теплоснабжение
Холодоснабжение
Выберите услугу:
Проектирование
Монтажные работы
Обслуживание
Чистка и дезинфекция
Обследование и диагностика
Автоматизация и диспетчеризация
Этапы работы
Бесплатная консультация
В ходе беседы выясняем потребности заказчика и предлагаем заполнить опросный лист для фиксации основных моментов.
Визит инженера-проектировщика
Наш специалист выезжает на объект, чтобы произвести осмотр, выполнить замеры, определить подходящий тип вентсистемы.
Составление технического задания
Общими усилиями составляем техническое задание — основной подготовительный документ, играющий главную роль при разработке проекта.
Работа над эскизным проектом
Составляем первую версию проекта, обсуждаем с заказчиком, принимаем предложения и вносим правки.
Разработка рабочего проекта
Выполняем и согласуем рабочий проект, вносим оставшиеся корректировки.
Передача проекта в формате (PDF, dwg)
Передаем клиенту и монтажникам цифровую версию проекта.
Примеры проектов вентиляции и кондиционирования
Часто задаваемые вопросы
Чем отличается вентиляция и кондиционирование?
Системы не являются взаимозаменяемыми, но эффективно дополняют друг друга. Вентиляционная система отвечает за воздухообмен в помещении: удаление отработанного воздуха, подачу свежего. Кондиционер регулирует температуру и влажность комнатного воздуха без подмеса уличного.
Какие сроки проектирования вентиляции и кондиционирования?
В среднем над составлением проекта инженеры работают от 5 дней до двух месяцев. Пример: на разработку проектной документации здания до 250 м² уйдет от 5 до 10 дней. 1000–2000м² — 1,5-2 месяца. Сроки для проектов для объектов свыше 2000 м² определяются индивидуально. Скорость выполнения работ зависит от габаритов объекта.
Как устроены системы кондиционирования воздуха?
Наиболее распространенный вид оборудования (сплит-система) включает внешний и внутренний блоки, фреоновую магистраль, электрокабели, блок автоматики. В мульти-сплит системах на один внешний блок приходится несколько внутренних. В канальных кондиционерах внутренний блок спрятан в систему воздуховодов: охлажденный воздух движется по воздуховодам, охлаждается, а в комнате на выходе из канала монтируются решетки.
Что входит в проект вентиляции?
Перечень работ по проектированию систем вентиляции и кондиционирования воздуха включает консультации на этапе согласования, во время проектирования и монтажных работ, разработку эскизной и рабочей версии, выполнение расчетов, составление спецификаций. В стоимость работ входит внесение правок и корректирующие мероприятия, формирование электронной версии документа.
В каком виде я получу проект?
Передача проектной документации производится в электронном виде в формате Adobe PDF и AutoCAD (dwg).
Сколько будет стоить проект по вентиляции?
Стоимость в каждом случае рассчитывается индивидуально. В среднем, цена проекта составляет 10-15% от общей суммы реализации системы, включая закупку оборудования, материалов и монтажные работы.
ХОВС — аббревиатура понятия «характеристики отопительно-вентиляционных систем». Эти данные также приводятся в проектной документации и учитываются в расчетах.
Как заказать систему вентиляции и кондиционирования?
Чтобы заказать составление проекта систем вентиляции кондиционирования, свяжитесь в нами удобным для вас способом: по телефону +7 (495) 055-72-55, e-mail: order@ceds.ru, через форму обратной связи или чат-бота на сайте. Наш менеджер перезвонит, чтобы уточнить детали и согласовать визит проектировщика.
Имеем лицензии и состоим в СРО

Допуск (стр. 1)

Допуск (стр. 2)

Лицензия МЧС (стр. 1)

Лицензия МЧС (стр. 2)

Сертификат ISO

Допуск монтаж (стр. 1)

Допуск монтаж (стр. 2)

Допуск монтаж (стр. 3)
Полезные статьи
Какие виды работ существуют в проектировании?
В проектировании существует множество видов работ, включая, но не ограничиваясь следующими:
-
Архитектурное проектирование — проектирование зданий и сооружений, включая планирование помещений, фасадов, крыш, окон и дверей, а также установление требований к конструкциям и материалам.
-
Инженерное проектирование — проектирование инженерных систем, таких как отопление, вентиляция, кондиционирование воздуха, электроснабжение, системы водоотведения и водоснабжения.
-
Проектирование систем безопасности — проектирование систем пожарной безопасности, систем видеонаблюдения, охранных систем и др.
-
Промышленное проектирование — проектирование производственных линий, оборудования и механизмов.
-
Гражданское проектирование — проектирование объектов гражданского назначения, таких как школы, больницы, торговые центры, офисные здания и жилые дома.
-
Ландшафтное проектирование — проектирование парков, скверов, площадей, садов и других объектов ландшафтной архитектуры.
-
Проектирование транспортных сооружений — проектирование дорог, мостов, тоннелей и других объектов транспортной инфраструктуры.
-
Проектирование мехатронных систем — проектирование комплексных систем, которые включают в себя механические, электрические и электронные компоненты.
-
Проектирование программного обеспечения — проектирование компьютерных программ и приложений, включая определение функциональных требований и архитектуры.
-
Проектирование упаковки — проектирование упаковки для товаров различных категорий, включая дизайн, форму и материалы.
Конкретные виды работ могут отличаться в зависимости от конкретной области проектирования.