Способы обозначения электрических розеток на чертежах.
- Где можно найти условное обозначение разных видов розеток?
- Схема электропроводки
- Обозначение розеток на электросхемах
- Обозначение выключателей на схемах
- Обозначение блока выключателей с розеткой
- Условные обозначения других приборов
- Виды и типы электрических схем
- Виды электросхем
- Структурная и функциональная электросхемы
- Принципиальная схема
- Монтажная электросхема
- Объединенная электросхема
- Обозначение блоков
- Подробнее о расположении и обозначениях розеток на чертежах
- Как обозначается электрическая розетка на чертеже, схеме?
- Чем отличаются план и схема электропроводки, и какие особенности их составления?
- Подскажите, какое размещение розеток оптимальное для кухни?
- Как правильно обозначить выключатели на строительных схемах?
- Существуют ли правила, регулирующие количество и размещение розеток в доме, или квартире?
- Виды электрических схем
- Условные обозначения однолинейных схем
- Обозначения общего применения. ГОСТ 2.721. Часть 2
- 6в. Обозначения электрических связей, проводов, кабелей и шин
- Буквенные обозначения в электрических схемах
- Базовые изображения и функциональные признаки
Где можно найти условное обозначение разных видов розеток?
Согласно стандарту ГОСТ, предписывается обозначение розеток на схеме, в котором указаны точные размеры и вид условно-графической символики. Начинать рассказ о стандарте ГОСТ 21.614 может показаться слишком очевидным, так как многие хорошо знакомы с его содержанием.
Было бы слишком просто, если бы я сейчас начал рассказывать про ГОСТ 21.614. Думаю, большинство знает его очень хорошо. Дело в том, что в этом ГОСТе не хватает всех необходимых условных обозначений. Кстати, в проекте новая редакция данного ГОСТа.
Насколько мне известно, последняя версия ГОСТ 21.614-88.
Я разработал свои условные обозначения для розеток и выключателей на основе данного документа. Ведь ничто нам не запрещает вводить новые обозначения?
Может быть мои обозначения получат более широкое распространение и станут поводом для внесения в данный ГОСТ, т.к. я сомневаются, что разработкой ГОСТов занимаются проектировщики. А посторонние от проектирования люди не всегда знают тех тонкостей, с которыми сталкиваются при проектировании.
1 В зависимости от исполнения:
- скрытой установки;
- открытой установки.
2 В зависимости от степени защиты от попадания влаги и пыли:
- без защиты IP20;
- с защитой IP44 (IP54).
На основе этой классификации я разработал свои обозначения.

Для розеток скрытого исполнения IP44 я ввел обозначение в виде «заливки половины области розетки», чтобы было видно как бы вертикальную черту розетки, которая указывает, что розетка скрытого исполнения, розетка открытого исполнения IP44 имеет всю залитую область розетки.
Для двухместных, трехместных и четырехместных розеток ввел также дополнительные обозначения.
Все розетки с заземляющим контактом.

Похожее обозначение ввел и для выключателей. Двухполюсные и трехполюсные выключатели понадобятся для обозначения пакетных выключателей вблизи двигателей, переключатель на два направления 2Р – нужен для обозначения проходного выключателя при управлении из трех или более мест (средние выключатели по схеме).
Можно было бы расширить список обозначений или даже наоборот, некоторые исключить, т.к. они возможно и не существует в природе, но пока остановлюсь на таком списке.
На выключатели и розетки у меня сделано 2 блока. Сейчас я их тестирую и буду применять уже в новых проектах. Данные условные обозначения буду прилагать к каждому проекту.
P
.
S
. Скоро поговорим и о блоках программы
AutoCAD
, а все те, кто оказывает помощь в развитии блога, будут периодически получать подарки в виде моих блоков.
Мы уже много раз говорили о том, насколько важно перед выполнением ремонтных работ по домашней электрике грамотно составить схему электроснабжения, с неё всё должно начинаться. На схемах отображаются основные электрические узлы – вводная линия, счётчик электрической энергии, устройства защиты, распределительные коробки и отходящие от них проводники, коммутационные аппараты, осветительные элементы
Чтобы глядя на схему хотя бы мало-мальски в ней разбираться, нужно знать каково условное обозначение выключателей и розеток на чертежах. Предлагаем вам этому немного поучиться.
Очень многие начинают ремонтные работы в строящемся доме или вновь приобретённой квартире с приглашения специалиста для помощи в составлении схемы. От вас потребуется лишь подробно рассказать, где вы планируете располагать крупногабаритную мебель и бытовую электротехнику. А уже задача профессионала – схематически отобразить всё это с указанием места установки выключателей и розеток на плане. Такой чертёж поможет вам чётко определиться с количеством необходимых материалов и рационально распланировать порядок ведения электромонтажных работ.

Мы не будем вести речь о сложных электрических элементах, типа рубильников, реле, тиристоров, симисторов, двигателей. Для домашних электросетей в этом нет необходимости. Наша главная задача – научиться распознавать обозначение бытовых выключателей и розеток на схематических чертежах.
Схема электропроводки
Составление схемы электропроводки необходимо при строительстве или капитальном ремонте дома. Выполняется эта схема на плане помещения с указанием высоты прокладки кабелей и мест установки автоматов, розеток и выключателей.
Этим планом будет пользоваться не только тот человек, который её составил, но и монтажники, а впоследствии и электромонтёры, ремонтирующие электропроводку. Поэтому условные изображения розеток и выключателей на чертежах должны быть понятны всем и соответствовать ГОСТу.
Обозначение розеток на электросхемах
Условное обозначение розетки – полукруг. Количество и направление чёрточек, отходящих от него, показывают все параметры этих устройств:
- Для скрытой проводки полукруг пересекается вертикальной чертой. В устройствах для открытой проводки она отсутствует;
- В одинарной розетке вверх отходит одна линия. В двойных – такая черточка сдвоенная;
- Однополюсная розетка обозначается одной линией, трёхполюсная – тремя, расходящимися веером;
- Степень защиты от погодных условий. Приборы с защитой IP20 изображаются прозрачным полукругом, а с защитой IP44-IP55 – этот полукруг закрашивается чёрным цветом;
- Наличие заземления показывается горизонтальной чертой. Она одинаковая в устройствах любой конфигурации.
Условное обозначение розеток на чертеже
Интересно. Кроме электрических розеток, есть компьютерные (для LAN-кабеля), телевизионные (для антенны) и даже вакуумные, к которым подключается шланг от пылесоса.
Обозначение выключателей на схемах
Выключатели на всех чертежах имеют вид небольшого кружка с наклонённой вправо чертой вверху. На ней нанесены дополнительные чёрточки. По количеству и виду этих чёрточек можно определить параметры устройства:
- крючок в виде буквы «Г» – аппарат для открытой проводки, поперечная черта в виде буквы “Т” – для скрытой;
- черта одна – одноклавишный выключатель, две – двухклавишный, три – трёхклавишный;
- если кружок закрашен, то это устройство со степенью защиты от погодных условий IP44-IP55.
Условное обозначение выключателей
Кроме обычных выключателей, есть проходные и перекрёстные, позволяющие управлять светом из нескольких мест. Обозначение таких аппаратов в электрических схемах аналогично обычным, но наклонных черт две: вправо-вверх и влево-вниз. Условные знаки на них дублируются.
Обозначение блока выключателей с розеткой
Для удобства пользования и более эстетичного вида эти приборы устанавливаются в соседних монтажных коробках и закрываются общей крышкой. Обозначаются по ГОСТу такие блоки полукругом, линии на котором соответствуют каждому устройству в отдельности.
На следующем рисунке два примера блоков выключателей и розеток:
- конструкция для скрытой проводки из розетки с заземляющим контактом и двойного выключателя;
- конструкция для скрытой проводки из розетки с заземляющим контактом и двух выключателей: двойного и одинарного.
Обозначение блока выключателей с розеткой
Условные обозначения других приборов
Кроме розеток и выключателей, в схемах электропроводки используются и другие элементы, имеющие свои обозначения.
В основу обозначения устройств защиты: автоматических выключателей, УЗО и реле контроля напряжения, заложено изображение открытого контакта.
Обозначение автоматического выключателя по ГОСТу состоит из необходимого количества контактов, соединённых между собой, и квадратика сбоку. Это символизирует одновременное срабатывание и системы защиты. Вводные автоматы в квартирах обычно двухполюсные, а для отключения отдельных нагрузок используют однополюсные.
Автоматический выключатель на обычных и однолинейных схемах
Специальных обозначений по ГОСТу для УЗО и дифференциальных автоматов не существует, поэтому они отражают особенности конструкции. Такие устройства представляют собой трансформатор тока и исполнительное реле с контактами. В дифавтоматах к ним добавлен автомат защиты от перегрузки и короткого замыкания.
Изображение УЗО и дифференциального автомата на схемах
Реле контроля напряжения отключает электроприборы при отклонении напряжения за допустимые пределы. Состоит такое устройство из электронной платы и реле с контактами. Это видно на схеме таких приборов. Она изображается на верхней крышке корпуса.
Схема реле контроля напряжения
Графические символы приборов освещения и подсветки, в том числе люстр на светодиодах, символизируют внешний вид и назначение приборов.
Условные обозначения светильников
Знание условных обозначений розеток и выключателей и другой аппаратуры на чертежах нужно при составлении проекта, монтаже и ремонте электропроводки и другого электрооборудования.
Виды и типы электрических схем
Перед тем, как начать изучать существующие обозначения электрооборудования и его соединения, необходимо разобраться с типологией схем. На территории нашей страны введена стандартизация по ГОСТ 2.701-2008 от 1.07.2009 года, согласно «ЕСКД. Схемы. Типы и виды. Общие требования».
- Объединенные.
- Расположенные.
- Общие.
- Подключения.
- Монтажные соединений.
- Полные принципиальные.
- Функциональные.
- Структурные.
Среди существующих 10 видов, указанных в данном документе, выделяют:
- Комбинированные.
- Деления.
- Энергетические.
- Оптические.
- Вакуумные.
- Кинематические.
- Газовые.
- Пневматические.
- Гидравлические.
- Электрические.
Для электриков представляет наибольший интерес среди всех вышеперечисленных типов и видов схем, а также самая востребованная и часто используемая в работе – электрическая схема.
Последний ГОСТ, который вышел, дополнен многими новыми обознвачениями, актуальный на сегодня с шифром 2.702-2011 от 1.01.2012 года. Называется документ «ЕСКД. Правила выполнения электрических схем», ссылается на другие ГОСТы, среди которых упомянутый выше.
В тексте норматива изложены четкие требования в подробностях к электросхемам всех видов. Поэтому руководствоваться при монтажных работах с электрическими схемами следует именно данным документом. Определение понятия электрической схемы, согласно ГОСТ 2.702-2011 следующее:
«Под электрической схемой следует понимать документ, содержащий условные обозначения частей изделия и/или отдельных деталей с описанием взаимосвязи между ними, принципов действия от электрической энергии».
После определения в документе содержатся правила реализации на бумаге и в программных средах обозначений контактных соединений, маркировки проводов, буквенных обозначений и графического изображения электрических элементов.
Следует заметить, что чаще в домашней практике используются всего три типа электросхем:
- Монтажные – для прибора изображается печатная плата с расположением элементов при четком указании места, номинала, принципа крепления и подведения к другим деталям. В схемах электропроводки для жилых помещений указывается количество, место расположения, номинал, способ подключения и другие точные указания для монтажа проводов, выключателей, светильников, розеток и т.п.
- Принципиальные – на них указываются подробно связи, контакты и характеристика каждого элемента для сетей или приборов. Различают полные и линейные принципиальные схемы. В первом случае изображается контроль, управление элементами и сама силовая цепь; в линейной схеме ограничиваются только цепью с изображением остальных элементов на отдельных листах.
- Функциональные – здесь без детализации физических габаритов и других параметров указывается основные узлы прибора или цепи. Любая деталь может изображаться в виде блока с буквенным обозначением, дополненного связями с другими элементами устройства.
Виды электросхем
Схемы, необходимые для выполнения работ, имеют разный вид и назначение.
Структурная и функциональная электросхемы
Структурная схема – это самый простой вид схем. На ней условно, чаще всего квадратами, изображены элементы цепи с поясняющими надписями. Это позволяет разобраться в принципе работы установки.
Функциональная электросхема отличается от структурной более подробным описанием всех элементов и связей между ними.
Принципиальная схема
Такие электросхемы используются в распредсетях и панелях управления. Они подробно показывают все элементы, без учёта взаимного расположения. Такие чертежи позволяют разобраться в деталях работы линий электроснабжения и цепей управления.
Принципиальные схемы есть двух видов:
- Полная. На ней изображены все элементы и соединяющие их провода. Может быть развёрнутой, изображающей всю электроустановку целиком, и элементной, показывающей на отдельных листах узлы и части установки;
- Однолинейная. На чертеже изображены только силовые цепи. Однолинейной такая схема называется потому, что вместо нескольких линий, изображающих три фазы, ноль и заземление, проводится только одна.
Монтажная электросхема
Необходима для выполнения монтажных работ. На этой схеме на плане расположения оборудования указано положение всех светильников, соединяющих проводов и другая информация, необходимая для выполнения электромонтажа.
Объединенная электросхема
Включает в себя различные типы электросхем в одной. Выполняется в случае, если это возможно выполнить без загромождения листа различными элементами и поясняющими надписями.
Это интересно: Лучшие розетки и выключатели
Обозначение блоков
Многим наверняка приходилось сталкиваться с таким элементом электрической сети, как блок «выключатель-розетка». Его применение весьма выгодно. Во-первых, это экономит немного места. А во-вторых, не нужно проделывать штробы для прокладки проводов отдельно к каждому коммутационному аппарату (проводники, идущие и на розетку, и на выключатель, укладывают в одной штробе). Компонуют подобные блоки по-разному.
Наглядно про блоки на следующем видео:
Обозначение розеток и выключателей, совмещённых в один блок, выглядит на схеме уже гораздо сложнее:
Блок скрытой установки из одного выключателя и одной розетки.
Блок скрытой установки из одного выключателя и одной розетки с защитным заземлением.

Блок скрытой установки из двух выключателей и розетки с защитным заземлением.
Блок скрытой установки из одноклавишного выключателя, двухклавишного выключателя и розетки с защитным заземлением.

Все эти изображения не нужно заучивать наизусть, главное, их понимать. А хороший, грамотно составленный чертёж всегда должен иметь внизу сноски с расшифровкой тех или иных обозначений.
{SOURCE}
Подробнее о расположении и обозначениях розеток на чертежах
Как обозначается электрическая розетка на чертеже, схеме?
Прокладывание проводки в помещении начинается с разработки проекта — составления и утверждения электросхемы. Условные обозначения на строительных схемах регламентируются ГОСТ 21.614-88.
Что касается обозначения розетки на электрической схеме, то его определяет ГОСТ 21.608-84. Согласно данному нормативному документу, все штепсельные розетки подразделяются на:
- те, которые предназначаются для открытой установки;
- те, которые устанавливаются скрытым способом;
- блоки, состоящие из электророзетки с выключателем.
Данные виды розеток могут быть одно-, двух- или трехполюсными. Двух- и трехполюсные источники электропитания могут обладать защитным контактом.
Условные обозначения розетки на схеме продемонстрированы на фото ниже.

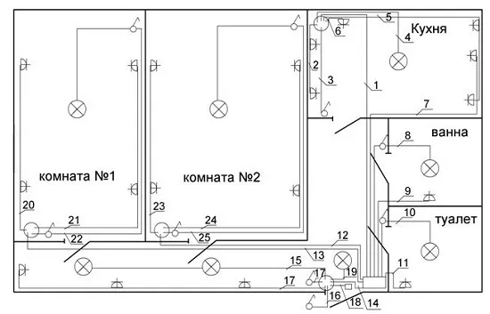
Чем отличаются план и схема электропроводки, и какие особенности их составления?
План электропроводки отличается от схемы тем, что на нем отображаются все особенности помещения, может осуществляться привязка к масштабу.
Сначала на бумаге вычерчивается полная планировка квартиры, включая жилые комнаты, санузел, кухню и прихожую. Далее на плане схематически намечают окна, двери, лоджию/балкон. Можно также отметить расположение бытовой техники и мебели — это даст полную картину прокладки проводки.
Далее производится разметка групповых электролиний — их количество зависит от площади квартиры, ее планировки, оснащения бытовой техникой. Чтобы равномерно распределить нагрузку, линии для электрических приборов и освещения лучше разделить. Затем производится обозначение розеток на чертежах, выключателей, лампочек.
Изображение ниже продемонстрирует пример плана проводки в двухкомнатной квартире, а также то, как на чертежах обозначаются розетки и выключатели.

Подскажите, какое размещение розеток оптимальное для кухни?
В кухонном помещении часто устанавливается крупногабаритная техника (электроплита, холодильник, посудомоечная машина, вытяжка, СВЧ-печь) — данные приборы нуждаются в стационарном электроснабжении. Поэтому на вопрос как на кухне расположить розетки для этих приборов есть один ответ — внизу.
Для мелких бытовых приборов, которые используются периодически (тостер, чайник, кухонный комбайн), можно использовать дополнительные источники питания, расположенные в фартуке, либо встроенные в столешницу.
Розетку для вытяжки лучше разместить над кухонным гарнитуром. Если вытяжка встроенная, источник питания лучше поместить внутрь того шкафчика, в который она вмонтирована. Также сверху можно расположить розетки для мебельного освещения.
Запрещено размещение розетки на кухне:
- над мойкой;
- плитой;
- непосредственно за корпусом бытового прибора.

Как правильно обозначить выключатели на строительных схемах?
Как и розетки, выключатели света заносятся в проектную документацию. Рассмотрим, как на схеме обозначается выключатель света.
Обозначение выключателей регламентируется ГОСТ 21.614-88 и зависит от их конструкции, параметров работы и степени защиты. Конструкционно выключатели делятся на одно-(сдвоенные или строенные), двух- и трехполюсные. Также существуют отдельные обозначения для выключателей открытой и закрытой установки, моделей с разной степенью защиты.
Данный ГОСТ определяет также обозначения для переключателей – электромеханических устройств, которые используются для соединения/разъединения электрических цепей.

Существуют ли правила, регулирующие количество и размещение розеток в доме, или квартире?
Четких правил, регламентирующих расположение розеток в квартире или частном доме, не существует. В СП 31-110 от 2003 года рекомендовано устанавливать выключатели по стороне дверной ручки. Для удобного использования источника электроэнергии, он должен находиться не выше 1 м от пола. Установка розеток под потолком допускается в том случае, если управление ими производится при помощи шнура.
В целях безопасности, розетка должна находиться на расстоянии 0,5 м от газопровода и 0,6 м от раковины, мойки, душевой.
Как и где размещать розетки в квартире зависит от предназначения помещения. В коридоре достаточно одной розетки в углу возле плинтуса для подзарядки телефона. В ванной комнате можно установить 1-2 розетки (возле зеркала и для стиральной машины), на кухне и в гостиной — 2-4 (в зависимости от количества бытовой техники).

Виды электрических схем
В соответствии с нормами ЕСКД под схемами подразумеваются графические документы, на которых при помощи принятых обозначений отображаются основные элементы или узлы конструкции, а также объединяющие их связи. Согласно принятой классификации различают десять видов схем, из которых в электротехнике, чаще всего, используется три:
- Функциональная, на ней представлены узловые элементы (изображаются как прямоугольники), а также соединяющие их линии связи. Характерная особенность такой схемы – минимальная детализация. Для описания основных функций узлов, отображающие их прямоугольники, подписываются стандартными буквенными обозначениями. Это могут быть различные части изделия, отличающиеся функциональным назначением, например, автоматический диммер с фотореле в качестве датчика или обычный телевизор. Пример такой схемы представлен ниже. Пример функциональной схемы телевизионного приемника
- Принципиальная. Данный вид графического документа подробно отображает как используемые в конструкции элементы, так и их связи и контакты. Электрические параметры некоторых элементов могут быть отображены, непосредственно в документе, или представлены отдельно в виде таблицы. Пример принципиальной схемы фрезерного станка
Если на схеме отображается только силовая часть установки, то она называется однолинейной, если приведены все элементы, то – полной.
Пример однолинейной схемы
Монтажные электрические схемы. В данных документах применяются позиционные обозначения элементов, то есть указывается их место расположения на плате, способ и очередность монтажа. Монтажная схема стационарного сигнализатора горючих газов
Если на чертеже отображается проводка квартиры, то места расположения осветительных приборов, розеток и другого оборудования указываются на плане. Иногда можно услышать, как такой документ называют схемой электроснабжения, это неверно, поскольку последняя отображает способ подключения потребителей к подстанции или другому источнику питания.
Разобравшись с электрическими схемами, можем переходить к обозначениям указанных на них элементов.
Условные обозначения однолинейных схем
Как уже говорили, на однолинейных схемах указывается только силовая часть: УЗО, автоматы, дифавтоматы, розетки, рубильники, переключатели и т.д. и связи между ними. Обозначения этих условных элементов могут использоваться в схемах электрических щитов.
Основная особенность графических условных обозначений в электросхемах в том, что сходные по принципу действия устройства отличаются какой-то мелочью. Например, автомат (автоматический выключатель) и рубильник отличаются лишь двумя мелкими деталями — наличием/отсутствием прямоугольника на контакте и формой значка на неподвижном контакте, которые отображают функции данных контактов. Контактор от обозначения рубильника отличает только форма значка на неподвижном контакте. Совсем небольшая разница, а устройство и его функции другие. Ко всем этим мелочам надо присматриваться и запоминать.

Обозначения элементов на однолинейной схеме
Также небольшая разница между условными обозначениями УЗО и дифференциального автомата. Она тоже только в функциях подвижных и неподвижных контактов.
Примерно так же обстоит дело и с катушками реле и контакторов. Выглядят они как прямоугольник с небольшими графическими дополнениями.

Условные обозначения катушек контакторов и реле разных типов (импульсная, фотореле, реле времени)
В данном случае запомнить проще, так как есть довольно серьезные отличия во внешнем виде дополнительных значков. С фотореле так совсем просто — лучи солнца ассоциируются со стрелками. Импульсное реле — тоже довольно легко отличить по характерной форме знака.

Условные обозначения разъемного (вилка-штепсель) и разборного (клеммная колодка) соединения), измерительных приборов
Немного проще с лампами и соединениями. Они имеют разные «картинки». Разъемное соединение (типа розетка/вилка или гнездо/штепсель) выглядит как две скобочки, а разборное (типа клеммной колодки) — кружочки. Причем количество пар галочек или кружочков обозначает количество проводов.
Обозначения общего применения. ГОСТ 2.721. Часть 2
6в. Обозначения электрических связей, проводов, кабелей и шин
1. Линия электрической связи, провода, кабели, шины, линия групповой связи.
1. Допускается защитный проводник (РЕ) изображать тонкой штрихпунктирной линией
2. При необходимости для линий групповой связи применяются утолщенные линии
3. При наличии текста к линии электрической связи, кабелю, шине или к линии групповой связи текст помещают:
б) в разрыве линии
в) в начале или в конце линии
2. Графическое разветвление (слияние) линий электрической связи в линию групповой связи, разводка жил кабеля или проводов жгута.
1. Расстояние между соседними линиями, отходящими в разные стороны, должно быть не менее 2 мм.
2. Для облегчения поиска отдельных линий связи можно указывать направление каждой линии при помощи излома под углом 45°, при этом:
а) точка излома должна быть удалена от групповой линии связи не менее чем на 3 мм;
б) наклонные участки соседних линий, изображенных по одну сторону от групповой линии связи, не должны пересекаться или иметь общие точки
3. Графическое разветвление (слияние) линий групповой связи
4. Графический излом линий электрической связи, линий групповой связи, провода, кабеля, шины:
б) под углом 135°
5. Пересечение линий электрической связи, линий групповой связи электрически не соединенных проводов, кабелей, шин, электрически не соединенных.
Линии должны пересекаться под углом 90°
Примечание. Линия, имеющая излом под углом 135°, не должна пересекаться с другой линией в точке излома
6. Линия электрической связи с ответвлениями:
1. Ответвления допускается изображать под углами, кратными 45°
2. Линию электрической связи с одним ответвлением допускается изображать без точки
3. При изображении ответвлений электрической связи не допускается в качестве точек ответвления использовать элементы условных графических обозначений, имеющие вид точек, изломов, пересечений и т.д.
4. Если при выполнении схем автоматизированным способом линии групповой связи выполняют неутолщенными, то для графического отделения этих линий от пересекающихся с ними или параллельных им линий электрической связи на линию групповой связи наносят наклонные штрихи.
7. Линии электрической связи, графически сливаемые и расположенные:
Примечание. На месте знаков Х и Y должны быть указаны условные обозначения линий по ГОСТ 2.702-75
8. Обрыв линии электрической связи.
Примечание. На месте знака Х указывают необходимые данные о продолжении линии на схеме
10. Ответвление шины
11. Шины, графически пересекающиеся и электрически не соединенные
12. Отводы (отпайки) от шины.
13. Группа проводов, подключенных к одной точке электрического соединения:
б) четыре провода
в) более четырех проводов
14. Линия электрической связи с ответвлением в несколько параллельных идентичных цепей.
Внутри обозначения ответвления указывают общее количество параллельных цепей, включая изображенную цепь, например:
15. Группа линий электрической связи, имеющих общее функциональное назначение, изображенная:
1. В однолинейном изображении буква n заменяется числом, указывающим количество линий в группе, например группа линий электрической связи, состоящей из семи линий
2. При многолинейном изображении группы для облегчения поиска линий допускается разбивать группу линий на подгруппы при помощи интервалов. При этом в каждой подгруппе должно быть одинаковое количество линий; крайняя подгруппа может содержать меньшее количество линий
3. В однолинейном изображении группы линий электрической связи, состоящей из 2 — 4 линий, допускается изображать:тоящей из 2 — 4 линий, допускается изображать:
а) группу из двух линий
б) группу из трех линий
в) группу из четырех линий
16. Переход группы линий электрической связи, имеющих общее функциональное назначение, от многолинейного изображения к однолинейному (например, восемь линий)
17. Группа линий электрической связи, имеющих общее функциональное назначение, каждая из которых имеет ответвление
18. Группа линий электрической связи, имеющих общее функциональное назначение и осуществляемых многожильным кабелем, например семижильным, изображенная:
19. Группа линий электрической связи, четыре из которых осуществлены многожильным кабелем
20. Группа линий электрической связи, осуществленная n скрученными проводами, например, шестью скрученными проводами, изображенная:
Буквенные обозначения в электрических схемах
Буквами на электросхемах и чертежах маркируют радиоэлементы, электронные детали, интегральные микросхемы, электродвигатели и прочее. Примерный перечень буквенной маркировки представлен нижеследующим списком.
Буквенная символика
Наряду с принятыми международными буквенными кодировками элементов, существует русскоязычная версия, отражённая УГО ГОСТа 7624-55. Выдержка из него приводится в таблице.
Обозначения по ГОСТу 7624-55
Электронная и энергетическая промышленность постоянно пополняется новыми радиокомпонентами и оборудованием. Их обозначения появляются в новостях электрики. Если встречаются новые элементы, то совсем нетрудно дополнить ими свою справочную литературу.
Базовые изображения и функциональные признаки
Коммутационные устройства (выключатели, контакторы и т.д.) построены на контактах различной механики. Есть замыкающий, размыкающий, переключающий контакты. Замыкающий контакт в нормальном состоянии разомкнут, при переводе его в рабочее состояние цепь замыкается. Размыкающий контакт в нормальном состоянии замкнут, а при определенных условиях он срабатывает, размыкая цепь.

Переключающий контакт бывает двух и трех позиционным. В первом случае работает то одна цепь, то другая. Во втором есть нейтральное положение.
Кроме того, контакты могут выполнять разные функции: контактора, разъединителя, выключателя и т.п. Все они также имеют условное обозначение и наносятся на соответствующие контакты. Есть функции, которые выполняют только подвижные контакты. Они приведены на фото ниже.
Функции подвижных контактов
Основные функции могут выполнять только неподвижные контакты.

Функции неподвижных контактов
Как правильно выбрать цвет розеток?
Выбор цвета розеток зависит от нескольких факторов:
-
Стиль интерьера. Цвет розеток должен соответствовать общему стилю помещения. Например, если ваш интерьер выполнен в современном стиле, то более подходящим выбором будет белый, черный или серый цвет розеток. Если же ваш дом имеет классический дизайн, то подойдут более традиционные цвета, такие как золотой, бронзовый или медный.
-
Цвет стен. Выбирайте цвет розеток, который хорошо сочетается с цветом стен. Если стены в вашем доме имеют нейтральный цвет, то лучше выбрать белые розетки, так как они будут смотреться чисто и аккуратно.
-
Количество розеток в комнате. Если в комнате много розеток, то лучше выбрать более нейтральные цвета, чтобы не перегружать интерьер.
-
Персональные предпочтения. Выбирайте цвет розеток в соответствии с вашими личными предпочтениями и стилем жизни. Например, если вы любите яркие цвета и хотите, чтобы розетки выделялись на фоне стен, то можете выбрать розетки ярких цветов.
-
Функциональность. Некоторые производители розеток выпускают специальные цвета для использования в разных целях. Например, красные розетки могут использоваться для обозначения розеток питания компьютеров или других электронных устройств.
В целом, при выборе цвета розеток следует учитывать стиль интерьера, цвет стен, количество розеток в комнате, личные предпочтения и функциональность. Если вы сомневаетесь в выборе цвета, то лучше выбрать нейтральный цвет, который подойдет к любому интерьеру.