Как самостоятельно построить мансардную крышу — видеоруководство
Дом с мансардой представляет собой не только дополнительное жилое пространство, но и визуально улучшает общий вид здания. Даже если верхний этаж не оборудован отоплением и используется лишь в летний период, он все равно обладает важным эффектом «воздушной подушки», способствующей задержанию тепла внутри всей постройки. Если вас интересует вопрос «как самому построить мансардную крышу» и вы ищете видеоматериалы по этой теме, то следующие ресурсы могут быть полезны…

, фото
Сделать мансарду самостоятельно будет сложно, особенно если Вы не имеете соответствующего опыта, ведь это достаточно массивная и сложная конструкция.
Мансардное помещение может устанавливаться под различными типами крыш, но наиболее популярным является ломанная или двускатная конструкция. По схеме строения они немного отличаются между собой.

Для того чтобы определиться, какая из конструкций будет больше подходить для Вашего дома и окажется проще в монтаже, необходимо рассмотреть оба варианта более детально. К тому же мастер, который будет заниматься строительством мансардной крыши должен разбираться, какую из двух видов конструкций стропильной системы выбрать.
Любая крыша относится к одному из существующих двух видов стропильных систем, представляет собой наслонную и висячую конструкции. Каждая из них отличается особенностью, и какую из них выбрать, зависит от того, как находятся несущие стены сооружения.

Висячая конструкция
Висячая конструкция – это система стропил, опирающая только на крайние капитальные стены. Это происходит, когда в самом доме, кроме внешних стен, нет никаких капитальных перегородок.
Эту конструкцию можно применять только в том случае, если между двумя капитальными стенами расстояние не более 8 м, поскольку эта система дает высокую нагрузку на фундамент. Чтобы снизить ее, в висячей системе применяются разные элементы, такие как затяжки и бабки, подкосы и ригели. К примеру, бабка подвешивает затяжку к коньковому соединению, а подкосы подтягивают балки к стропильным ногам.

Для балок перекрытий в висячей системе используют отесанные бревна или достаточно толстые бруски, устанавливающиеся на ребро. Их сечение должно быть не меньше 100х200 мм. Пол в мансардном помещении должен быть максимально надежным, и чтобы не ошибиться в параметрах, лучше поручить расчеты специалисту.
Наслонная система
Наслонная система, в отличие от висячей, держится не просто на двух внешних несущих стенах, но и на капитальных перегородках, установленных на фундаменте. Поэтому, планируя постройку мансарды, необходимо заранее продумать, какой будет конструкция ленточного фундамента, на котором будут устанавливаться капитальные перегородки. Наслонная система прекрасно подходит для устройства мансарды, поскольку выдерживает высокие нагрузки, по сравнению с висячим вариантом. Он предоставляет хорошую основу для балок перекрытия и соответственно для пола мансарды.

Если же делать ломанный вариант мансардной крыши, то есть смысл использовать комбинированную систему кровли, то есть боковые стропила устанавливаются по наслонному типу, а коньковые – в виде висячей системы.
, фото
При строительстве дома из блоков или кирпича с мансардой часто ее фронтальная сторона строится из такого же материала. Это удобно, потому что не придется рассчитывать параметры этих элементов крыши и собирать из брусков, поле чего поднимать на стену. Но важно понимать, что стены строения должны обязательно стоять на надежном фундаменте и иметь хорошую толщину, поскольку такой фронтон дает существенную нагрузку на главное строение.

Если же мансарда выполняет роль еще одного этажа круглогодично, то сложенная из пеноблоков или кирпича фронтонная стена – это прекрасный вариант для создания жилого помещения под крышей.
Чтобы мансардные помещения при двускатной крыше были просторными и имели нормальную высоту, угол скатов крыши должен быть приблизительно 45-50°, в зависимости от ширины торцевой части сооружения. Если брать меньший угол – существенно уменьшится объем помещения. Увеличение крутизны скатов сделает крышу неоправданно высокой, она утяжелится, будет иметь большую парусность при ветровой нагрузке, а расходы материалов будут нецелесообразны.

Безусловно, монтаж двускатной крыши проще, по сравнению с ломанной конструкцией, поскольку используются ровные стропила без дополнительных связей и всяких перегибов. Но ломанная конструкция позволяет сделать помещение в этой части более просторным, а потолки соответственно более высокими.
Ломанная система и в исполнении, и в расчетах, и в настиле кровельного покрытия намного сложнее, но она не просто создает более просторное пространство под крышей, но и придает солидности всему строению. Ее основная сложность заключается в большом количестве сложных связующих элементов. Все связки должны выполняться согласно с технологией, в противном случае крыша получится неустойчивой.

Если стены выстроены из кирпича или камня, то фронтальные части лучше выложить заранее во время общей кладки. В таком случае, чтобы создать уникальную стропильную систему, ровняясь на готовые фронтоны, можно установить промежуточные стропила и специальные подпорные крепления к ним.

Перед тем как покупать и готовить материал для той или иной системы, нужно составить проект конструкции с соответствующими размерами – он станет главным руководством для подготовки и сборки элементов во время монтажа.
Видео: стропильная система ломаной мансардной крыши
Проект мансарды
Разрабатывая схему постройки мансарды, лучше это сделать в различных проекциях, чтобы наглядно понять, как будут размещаться элементы стропильной системы. Важно правильно рассчитать какой должна быть высота конька крыши, поскольку именно от нее зависит размер площади.

Подготавливая схему-проект постройки крыши для мансарды, необходимо рассчитать высоту потолка, конька и общую площадь помещения.
Минимальная высота от пола до конька – 2,5-2,7 м, если же такое расстояние будет меньшим, то помещение нельзя называть мансардой, ему больше подходит название чердак. Такой показатель установлен нормами СНИП.

Для того чтобы все элементы были точно вычерчены и имели правильное расположение в общей системе, необходимо отталкиваться от фигуры с прямыми углами, а именно от квадрата или прямоугольника – сечение создаваемого мансардного помещения. Опираясь на ширину и высоту будущей комнаты,Вы никогда не ошибетесь с величинами углов, под которыми находятся скаты крыши, с расположением стропил, конька и прочих подпорных элементов. Выяснив эти параметры, их нужно сразу занести в чертеж.
Прежде всего, нужно вычислить середину ширины фронтальной стены. Дальше от этой точки определяется высота конька, потолка мансарды, расположение стен (стоек) и размер карнизного свеса.

В связи с тем, что каждая из этих конструкций имеет некое количество соединительных узлов с разными конфигурациями, неплохо бы каждую из этих связок прорисовать отдельно, чтобы детально разобраться в особенностях сопряжения всех элементов, которые соединяются в этой точке.

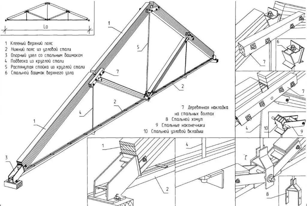
Все стропильные системы включают основные и дополнительные элементы, которые могут встречаться не в каждой конструкции. К главным составляющим крыши мансарды относятся:
- балки перекрытия (основа для остальных элементов системы). Их укладывают на капитальные стены.

- Стропильная нога, состоящая из двух отделов (в случае ломанной схемы) или прямая в двускатной системе. Верхнее стропило в таком случае называется коньковым, поскольку образует самую высокую точку крыши – конек, а стропила, которые формируют стены мансарды, называют боковыми.

- Мауэрлат – мощный брус, который закрепляется к капитальным боковым стенам. На этот элемент необходимо установить стропильные ноги.

- Коньковая доска или брус – неотъемлемый элемент для двухскатной крыши, но далеко не всегда используется при устройстве ломанной кровли.

- Стройки – опорные элементы, которые требуются для укрепления ломаной и двухскатной конструкции. В первом случае к ней присоединяют боковое и коньковое стропило, а в последнем – стойка выступает хорошей подпоркой для длинного стропила. Более того, стойки являются каркасом для обшивки и утепления стен мансарды.

- Диагональные связывающие элементы дополнительно скрепляют продольные балки или стойки и стропила, тем самым делая конструкцию еще более прочной.

- Межстропильные прогоны устанавливаются в случае ломанной крыши для жесткости конструкции.

- Балки чердачного перекрытия используются в обоих вариантах системы – ими связывают стойки, и они выступают каркасом для устройства потолка.

Для того чтобы быть уверенным, что проект разработанный без ошибок, неплохо было бы показать его специалисту. Он определит, насколько правильно Вы подобрали параметры мансарды к длине и ширине стен строения.
Видео: расчет мансардной крыши с помощью ПО
Параметры материалов для строительства мансардной крыши
Когда графический элемент будет готов, то, отталкиваясь от размеров, поставленных на нем, Вы сможете рассчитывать количество материалов, которые понадобятся для строительства мансардной крыши. Выбирать материалы необходимо по их характеристикам, которые должны соответствовать требованиям экологической и противопожарной безопасности.

Для древесины нужно предусмотреть обработку антисептиком, которая существенно снизит горючесть материалов. Для строительства потребуются:
- доски под стропильные ноги, сечение которых подбирается по результатам расчетов, о чем Вы узнаете немного ниже.

- Брус в 150х200 или 100х150 мм – для балок перекрытий, в зависимости от ширины между несущими стенами, стропильной системы, а также для прогонов, ендов или диагональных ног – если они, конечно, предусмотрены конструкцией.

- Брус от 100х150 или 150х150 мм, предназначенный для укладки мауэрлата.

- Обычно для стоек применяется брус 150х150 или 100х100 мм.

- Необрезная доска для чернового пола, а также некоторых крепежных элементов.

- Отожженная стальная проволока диаметром 3-4 мм – для скрепления некоторых деталей.

- Болты, гвозди, скобы различных размеров, уголки разных конфигураций и прочие крепежные элементы.

- Пиломатериалы для контробрешетки и обрешетки для кровельного материала – в зависимости от того, какой будет тип кровли.

- Пароизоляционные и гидроизоляционные мембраны.

- Утеплительные материалы, предназначенные для термоизоляции кровли.

- Кровельный материал и специальные крепежные элементы.

Сечение стропила
Стропила предоставляют элемент кровли, который воспринимает основные внешние нагрузки, а значит к их сечению предъявляются особые требования.
Размер необходимого пиломатериала зависит от многих параметров – начиная от шага между стропильными ногами, длины этих ног между точками опоры и заканчивая выпадающей на них ветровой и снеговой нагрузкой.

Геометрические параметры стропильной системы легко определяются на чертеже. Но чтобы разобраться с другими параметрами, придется обратиться к справочным материалам и выполнить некоторые расчеты.
Снеговая нагрузка
Ни для кого не секрет, что снеговая нагрузка отличается в разных регионах нашей страны. Ниже на рисунке Вы увидите карту, на которой вся Россия разбита на зоны, демонстрирующие снеговую нагрузку.

Всего выделяют 8 зон (последняя относится к эстремальным и ее можно не рассматривать для сооружения мансардной крыши).
| Районы по величине снеговой нагрузки | Значение в кг/м2 | Значение в кПа |
| I | 80 кг/м² | 0.8 кПа |
| II | 120 кг/м² | 1.2 кПа |
| III | 180 кг/м² | 1.8 кПа |
| IV | 240 кг/м² | 2.4 кПа |
| V | 320 кг/м² | 3.2 кПа |
| VI | 400 кг/м² | 4.0 кПа |
| VII | 480 кг/м² | 4.8 кПа |
Теперь Вы можете точно рассчитать снеговую нагрузку, которая будет напрямую зависеть от угла ската крыши. Для этого используется такая формула:
S = Sg × μ
Sg – показатель в таблице (внимательно изучите карту и таблицу, прилагаемую к ней).
μ — поправочный коэффициент, который зависит от крутизны ската крыши.
Например, если угол ската крыши меньше 25°, то – μ=1,0; если от 25 до 60°, то μ=0,7; если больше 60°, то снег не будет задерживаться на крыше, и снеговая нагрузка не берется в расчет.

Если мансардная крыша ломанной конструкции, то для различных ее участков нагрузка может иметь неодинаковые значения.
Угол наклона крыши можно определить простым соотношением высоты и основания треугольника (обычно – половина ширины пролета) или транспортиром по чертежу.

Этот показатель также во многом зависит от региона постройки сооружения, от высоты его крыши и от особенностей окружения.

И вновь для расчета понадобится определить исходные данные по карте и таблице, прилагаемой к ней.
Расчет для этого задания будет осуществляться по следующей формуле:
Wp = W × k × c
W – значение в таблице, в зависимости от конкретного региона.
k – коэффициент, учитывающий месторасположение и высоту здания (см. таблицу).
Буквами в таблице указаны следующие зоны:
- А – открытая местность, лесостепи, степи, тундра, пустыни, лесотундра, побережья морей, водохранилищ и крупных озер.
- Б – территории городов, местность с частыми препятствиями для ветра, искусственными или рельефными, высотой не меньше 10 м, лесистая местность.
- В – плотная городская застройка, высота зданий от 25 м.
с – коэффициент, который зависит от преобладающего направления ветра (розы ветров региона), а также от угла наклона кровли.

С таким коэффициентом дело намного сложнее, поскольку ветер способен оказывать двоякое воздействие на крыши. Так, он оказывает опрокидывающее, прямое воздействие на кровельные скаты. Однако при малых углах отдельное значение имеет аэродинамическое воздействие ветра – он поднимает плоскость ската за счет возникающих подъемных сил.

Как Вы уже заметили, что на схемах, которые прилагаются к таблицам, отмечены участки крыши, которые подвергаются максимальным ветровым нагрузкам, а также обозначены соответствующие коэффициенты, используемые для расчета.
Стоит отметить, что при углах ската до 30° (на участке коньковых стропил) коэффициенты обозначены и отрицательные (направленные вверх) и со знаком плюс. Они несколько гасят ветровую нагрузку, а чтобы уменьшить воздействие подъемных сил, нужно тщательно закрепить кровельный материал и стропильную систему на этом участке, применяя дополнительные связи (к примеру, отожженную стальную проволоку).
Как только снеговая и ветровая нагрузки будут рассчитаны, их можно просуммировать и с учетом конструктивных особенностей системы, выявить сечение досок для стропил.
Учтите, что эти данные указаны для самых применяемых хвойных материалов (ель, сосна, лиственница или кедр). В таблице Вы можете увидеть максимальную длину стропил между опорами, сечение доски в зависимости от шага между стропилами и сортности материала.
Значение суммарной нагрузки указано в Килопаскалях (кПа). Провести эту величину в привычные килограммы на м2 не составит особого труда. 1 кПа ≈ 100 кг/м².
Что касается значения размеров доски по ее сечению, то оно округляется в большую сторону стандартных размеров пиломатериалов.



Какие инструменты понадобятся для обустройства мансардной крыши своими руками?
Безусловно, во время работы не обойтись без набора инструментов, в список которых входит:
- шуруповерт, электродрель;
- строительный уровень, рулетка, отвес и угольник;
- стамеска, топор, молоток, долото;
- электролобзик, циркулярная пила, ножовка;
- плотницкий нож.
Если работа будет проходить в окружении грамотных наставников, поэтапно и аккуратно, а инструмент будет качественный, процесс будет намного ускорен.

Мансардная крыша своими руками: основные этапы + видео
Важно четко соблюдать последовательность работ, ведь только так конструкция получится прочной и надежной.
- Крепление мауэрлата.
Установка любой стропильной системы должна начинаться с закрепления на торце боковых стен строений мощного опорного бруса – мауэрлата. На него удобно устанавливать стропильные ноги. Он изготавливается из качественного бруска 100х150 мм. Мауэрлат укладывается на гидроизоляцию из рубероида, настеленную по верхнему торцу стены (невзирая на материал).
Благодаря мауэрлату нагрузка равномерно распределяется по стенам и передается на фундамент. Он закрепляется к стене посредством металлических шпилек, которые предварительно вмуровывают в венец или бетонный пояс, идущий по верхнему краю стены сооружения или анкерными болтами 12 мм. Они должны входить вглубь стены не меньше чем на 150-170 мм. В том случае, если мауэрлат устанавливается на стену из дерева, то брусья прикрепляются к ней с помощью деревянных нагелей.
- Установка стропильной системы.
Монтаж стропильной конструкции начинается с установки балок перекрытия, которые могут крепиться сверху на мауэрлат (если Вы планируете вынести балки за пределы помещения, увеличив его площадь). В такой конструкции стропильные ноги закрепляются непосредственно на балки перекрытия.

В ином случае они могут укладываться на гидроизолированные стены и закрепляться с помощью скоб или уголков к внутреннему краю мауэрлата. Этот вариант используется, если стропильные ноги нужно закреплять прямо на мауэрлат.
Затем нужно рассчитать центр балки перекрытия, поскольку эта отметка будет ориентиром для выявления месторасположения конька и опорных стоек.
Стойки должны находиться на одинаковом расстоянии от середины балки перекрытия. В будущем они станут определять расположение стен помещения, а именно его ширину.

Бруски для стоек должны иметь сечение, отвечающее размеру балок перекрытия. Стойки крепятся к балкам с помощью деревянных накладок и специальных уголков. Но для начала их наживляют гвоздями, после чего выравнивают с помощь отвеса и строительного уровня и только потом капитально закрепляют с расчетом на предстоящие нагрузки.
Как только первая пара стоек будет установлена, их скрепляют сверху бруском (затяжка). Он в свою очередь соединяется с помощью металлических уголков со стойками.

Когда затяжка будет закреплена, у Вас получится П-образная конструкция. По бокам на нее устанавливаются наслонные стропила, которые укладываются на мауэрлат или крепятся к балке перекрытия вторым концом.
На установленные опоры для бруса или в стропиле выпиливается паз (специальная выемка). С ее использованием стропила устанавливаются на брус мауэрлата и крепятся посредством металлических скоб.
Для обеспечения жесткости конструкции от основания стойки к средине бокового стропила можно установить подкосы. Если этого окажется мало, и Вам не жалко материала, то неплохо было бы усилить общую конструкцию схватками и дополнительными стойками.

Затем на затяжке вычисляется середина. К этому месту будет крепиться балка, которая подпирает коньковое соединение верхней висячей подсистемы стропил.
Следующий этап – установка коньковых стропил. Они могут скрепляться различными соединениями – это могут быть мощные болты с металлическими шайбами или пластинами или металлическая накладка.
После их установки к средине затяжки и коньку крепится бабка.

По завершению работы над одной частью стропильной конструкции необходимо сделать остальную часть по такому же принципу. Расстояние между соседними стропилами в такой системе должно быть не больше 900-950 мм, но лучшим вариантом будет интервал в 600 мм, что придаст конструкции необходимую устойчивость и жесткость и будет удобно для утепления посредством стандартных матов минеральной ваты. Но это существенно утяжеляет конструкцию и увеличивает расходы материалов.
Сначала устанавливаются боковые детали системы в сборе, после чего промежуточные. Они связываются между собой прогонами, которые устанавливаются между верхними концами стоек и работают, как распорки. Так, получается жесткая конструкция стропил мансарды, где уже будет готовый каркас для отделки стен.

Гидроизоляция мансардной крыши
Как только Вы выстроите стропильную систему, можно приступать к отделке ее утеплительными и прочими сопутствующими материалами.
Стоит отметить, что первым покрытием поверх стропил должна быть гидроизоляционная и ветрозащитная пленка. Она прикрепляется к стропилам с помощью стиплера и скоб, начиная от карниза. Полотна настилаются внахлест (200 мм), а затем водостойким скотчем склеиваются стыки.

Сверху гидроизоляции набивается контробрешетка, которая лучше зафиксирует пленку на поверхности и создаст вентиляционное расстояние между кровельным и ветрозащитным материалом. Обычно контробрешетка выполняется из досок толщиной в 50-70 мм и шириной в 100-150 мм.
Перпендиколярно ей закрепляется обрешетка, на которую настилается кровельный материал. Что касается шага между рейками, то он рассчитывается в зависимости от размеров и типа листового кровельного материала, с учетом необходимого для него нахлеста.

Если же Вы используете мягкую кровлю, то на контробрешетку обычно закрепляются фанерные листы.
Как проходит монтаж кровельного покрытия
На подготовленную фанеру или обрешетку закрепляется кровельный материал. Обычно его монтаж начинается от карниза крыши и дальше поочередно, от одного из краев – в зависимости от типа кровли. Сами кровельные листы устанавливаются внахлест. Если для покрытия применяется металлочерепица или металлический профиль, то этот материал закрепляется с помощью специальных саморезов с эластичными прокладками. Обычно крепежные элементы подбираются по цвету к материалу.
Наиболее сложный этап в покрытии ломаной крыши – переход от наслонных боковых стропил к коньковым стропилам. Также могут возникнуть некие сложности и в том случае, если на крыше предусмотрены выступы для обустройства кровли над окнами или балконами.
Более того, если на крышу выходит дымоходная труба, для нее нужно отдельное оформление отверстия в утеплительном слое и стропильной системе, а на кровле – устройство вокруг надежной гидроизоляции.

Какой материал лучше использовать для крыши мансарды, Вы тоже можете узнать на нашем строительном портале в соответствующем разделе.
Видео: строительство мансардной крыши своими руками
Стоит отметить, что работа по возведению любой крыши, включая такую сложную, как мансардная, очень ответственная и опасна, поэтому требует повышенных мер безопасности. Если у Вас нет опыта в таких строительных процессах, то лучше поручить их выполнение специалистам или пригласить опытного мастера, под контролем которого выполнять все действия, аккуратно и осторожно.
Возможно Вам будет также интерестно:
- анкерные болты
- балки
- брус
- ветровая нагрузка
- ветрозащитная пленка
- гидроизоляционные мембраны
- гидроизоляция
- гидроизоляция мансардной крыши
- диагональные связывающие элементы
- долото
- доски под стропильные ноги
- карниз
- конструкция ленточного фундамента
- контробрешетка
- ломаная крыша
- мансардная крыша
- мансардное помещение
- мауэрлат
- межстропильные прогоны
- металлочерепица
- молоток
- монтаж двускатной крыши
- монтаж кровельного покрытия
- наслонная система
- необрезная доска для чернового пола
- ножовка
- обустройство кровли
- переход от наслонных боковых стропил к коньковым
- пиломатериалы
- подпорные элементы
- проект мансарды
- саморезы
- сечение стропила
- система ломаной мансардной крыши
- система стропил
- строительство мансардной крыши
- увеличение крутизны скатов
- угол ската крыши
- установка стропильной системы
- фанерные листы
- эластичные прокладки
Как построить беседку в Minecraft?
Построить беседку в Minecraft довольно просто, и вот некоторые шаги, которые могут помочь:
Шаг 1: Выберите место для постройки Выберите место для постройки беседки. Хорошим выбором может быть плоская зона в лесу или на берегу озера. Убедитесь, что выбранное место достаточно большое для того, чтобы вместить беседку.
Шаг 2: Соберите материалы Соберите материалы для постройки беседки. Материалы, которые вы выберете, будут зависеть от того, как вы хотите, чтобы выглядела ваша беседка. Некоторые популярные варианты включают дерево, камень или кирпичи.
Шаг 3: Начните строительство Начните строительство, создавая основание для беседки. Это может быть просто равная земля, или вы можете использовать блоки, чтобы создать более прочное основание.
Шаг 4: Создайте каркас беседки Создайте каркас беседки, используя выбранные вами материалы. Каркас может быть простым квадратом или прямоугольником, или у вас может быть более сложная форма, если вы хотите, чтобы ваша беседка выглядела более уникальной.
Шаг 5: Поставьте крышу Поставьте крышу на свою беседку. Крыша может быть скатной или плоской, в зависимости от того, какой стиль вы выбрали.
Шаг 6: Добавьте детали Добавьте детали, чтобы сделать вашу беседку более уютной. Это может быть что угодно, от стульев и столов до цветов и растений. Используйте свою фантазию и творческий подход, чтобы создать уникальную беседку.
Шаг 7: Закончите работу Закончите работу над беседкой, проверив, что она полностью завершена и отвечает вашим требованиям.
Это не полный список шагов, но я надеюсь, что он дал вам представление о том, как построить беседку в Minecraft.